Property
Beds
4
Full Baths
2
1/2 Baths
None
Year Built
1967
Sq.Footage
1,552
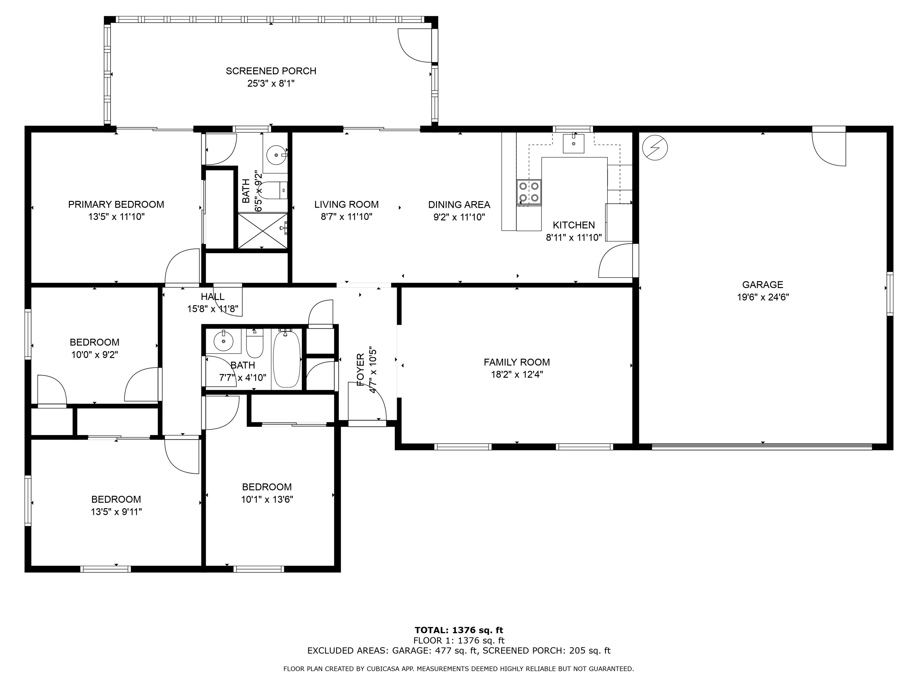
Welcome home to this beautiful, brick single-story 4 bedroom/2 bath located in the sought-after Kenwood neighborhood. Fenced back yard, mature trees & mid-century charm create a great place to call home. The formal living room is large and there is a second sitting area near the dining room & kitchen. There are sliders from the dining room and the master bedroom that open to a 25 x 8 Sunroom with functioning screen windows to enjoy cooler weather. The kitchen has a breakfast bar and a window over the sink. Three bedrooms share the full hall bathroom, and the master bedroom has an ensuite with a tiled shower. New water heater 2025! New roof 2023! Double pane windows. HVAC Dec 2021; HVAC parts warranty thru Dec 2026. Seller is offering to update wiring with alumiconn connectors. A fantastic location conveniently situated between two military installations: about 9 miles to Eglin Air Force base or Hurlburt field. About 6 miles to the sugar white sandy beaches of Okaloosa Island. A short distance to schools, shopping, golf/tennis/pickleball and medical facilities. The neighborhood has a lot to offer. This is the place you've been waiting to call home. Don't miss out on this fantastic opportunity in Kenwood.
Features & Amenities
Interior
-
Other Interior Features
Breakfast Bar
-
Total Bedrooms
4
-
Bathrooms
2
-
Cooling YN
YES
-
Cooling
Ceiling Fan(s), Central Air
-
Pet friendly
N/A
Exterior
-
Garage
Yes
-
Garage spaces
2
-
Construction Materials
Frame
-
Parking
Garage Door Opener, Attached
-
Patio and Porch Features
Covered, Porch
-
Pool
No
Area & Lot
-
Lot Size(acres)
0.25
-
Property Type
Residential
-
Property Sub Type
Single Family Residence
-
Architectural Style
Ranch
Price
-
Sales Price
$359,990
-
Zoning
City, Resid Single Family
-
Sq. Footage
1, 552
-
Price/SqFt
$231
HOA
-
Association
No
School District
-
Elementary School
Kenwood
-
Middle School
Pryor
-
High School
Choctawhatchee
Property Features
-
Stories
1
-
Sewer
Public Sewer
-
Water Source
Public
Schedule a Showing
Showing scheduled successfully.
Mortgage calculator
Estimate your monthly mortgage payment, including the principal and interest, property taxes, and HOA. Adjust the values to generate a more accurate rate.
Your payment
Principal and Interest:
$
Property taxes:
$
HOA fees:
$
Total loan payment:
$
Total interest amount:
$
Location
County
Okaloosa
Elementary School
Kenwood
Middle School
Pryor
High School
Choctawhatchee
Listing Courtesy of G Kaye Towner , Keller Williams Realty FWB
RealHub Information is provided exclusively for consumers' personal, non-commercial use, and it may not be used for any purpose other than to identify prospective properties consumers may be interested in purchasing. All information deemed reliable but not guaranteed and should be independently verified. All properties are subject to prior sale, change or withdrawal. RealHub website owner shall not be responsible for any typographical errors, misinformation, misprints and shall be held totally harmless.

30A Luxury Group
EXP LUXURYGROUP 30A
Call EXP LUXURY today to schedule a private showing.

* Listings on this website come from the FMLS IDX Compilation and may be held by brokerage firms other than the owner of this website. The listing brokerage is identified in any listing details. Information is deemed reliable but is not guaranteed. If you believe any FMLS listing contains material that infringes your copyrighted work please click here to review our DMCA policy and learn how to submit a takedown request.© 2024 FMLS.
